Villa a schiera in vendita

San Mango Piemonte, Viale Dei Biancospini - Campo Maiuri
€ 225.000
5 locali 5 locali
185 Mq 185 Mq
3 bagni 3 bagni

Villa a schiera in vendita

San Mango Piemonte, Viale Dei Biancospini - Campo Maiuri

Descrizione annuncio

San Mango Piemonte – Villetta a schiera con ampi spazi esterni e vista aperta

A soli 2 km dallo svincolo autostradale SA-RC, proponiamo in vendita una graziosa villetta a schiera su tre livelli, perfetta per chi desidera vivere in tranquillità senza rinunciare alla comodità dei collegamenti.

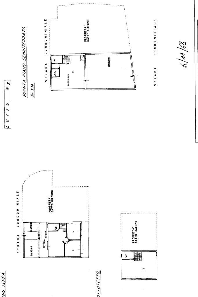
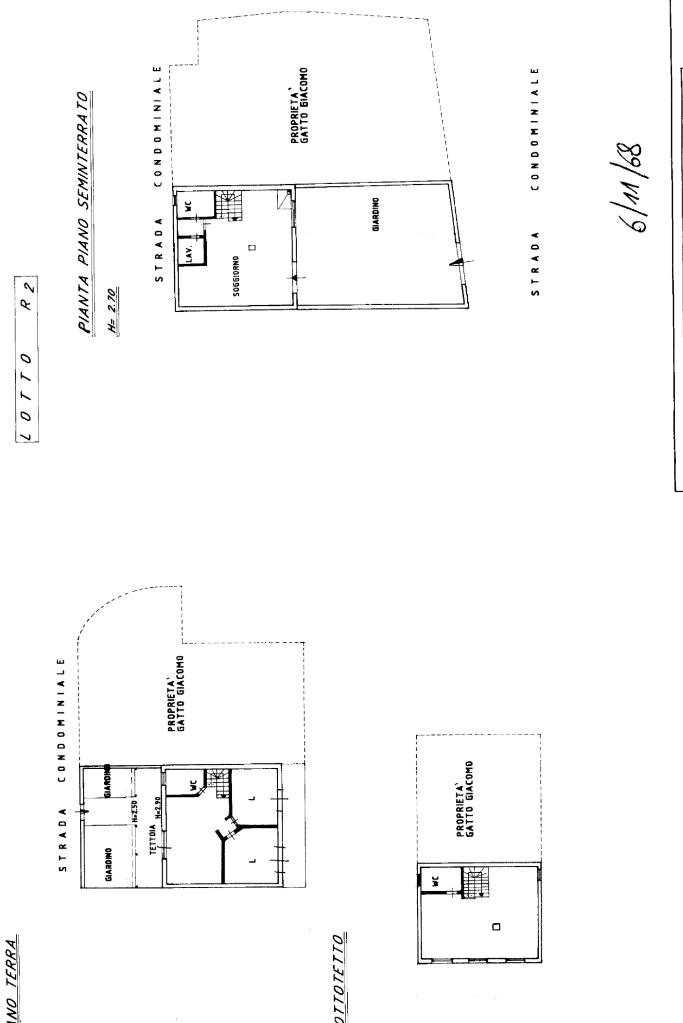
Al piano terra ci accoglie un ampio e luminoso soggiorno con zona pranzo e un accogliente camino a legna, ideale per creare un’atmosfera calda e familiare. Adiacente, troviamo una cucina abitabile semiaperta, funzionale e ben organizzata. Sullo stesso livello si sviluppano due camere da letto con accesso ad un ampio balcone di pertinenza.

Il piano seminterrato ospita un ampio soggiorno, un bagno e una pratica lavanderia, ideali come zona relax o area hobby.

Al piano sottotetto, un grande open space offre la possibilità di creare una camera padronale con zona studio o di dividere gli ambienti secondo le proprie esigenze; è presente inoltre un bagno dedicato.

All’esterno, la proprietà è arricchita da un ampio giardino terrazzato all’ingresso e da un secondo terrazzo con tettoia, perfetti per momenti di relax all’aperto, pranzi in famiglia o per chi ama vivere con i propri animali domestici.

Ideale per chi cerca privacy, tranquillità e ampi spazi esterni, senza rinunciare alla vicinanza ai principali servizi e vie di comunicazione.

Mostra tutto

Nelle vicinanze

Ristoranti Ristoranti
Autogrill
1,6 Km
Mostra tutto

Caratteristiche

Rif.:
61132695
Piano:
Su più livelli di 3
Totale piani:
3
Posti auto:
2
Balconi:
1
Terrazzi:
2
Mostra tutto
Prezzo Prezzo
€ 225.000
Rata mutuo Rata mutuo
€ 1.048 / mese
Spese annue Spese annue
€ 0
Proponi il tuo prezzoProponi il tuo prezzo

Classe Energetica

F
F
F
F
F
F
F
F
F
EP globale non rinnovabile:
175.00 kW h/m² anno
EP globale rinnovabile:
175.00 kW h/m² anno
EP invernale del fabbricato:
EP estiva del fabbricato:
Anno di costruzione:
1995
Riscaldamento:
Autonomo
Tipo impianto:
A radiatori
Tipo alimentazione:
Metano

Ti interessa visionare l'immobile?

Fissa un appuntamento  Fissa un appuntamento

Richiedi informazioni

Clicca su Leggi per aprire l'informativa
* Questi campi sono obbligatori

Calcola il tuo mutuo

Semplice e senza impegno
Anticipo

( % )
Mutuo

( % )

pochi semplici passi

inserisci i tuoi dati
Questionario completato
Grazie per aver richiesto un appuntamento senza impegno con un nostro Consulente del Credito e Assicurativo.

Hai inserito correttamente tutti i dati necessari e a breve riceverai una e-mail con un link da convalidare per inviare i tuoi dati.
Affiliato
Studio Picentino Srl
Via Vigna, 21 84099 San Cipriano Picentino (SA)

Il nostro staff


  • Alessandro Papandrea
    Affiliato

  • Corina Gabriela Caleasca
    Coordinatrice

  • Luciano Capaccio
    Affiliato
Via Vigna, 21 84099 San Cipriano Picentino (SA)
Zona: Matierno - Ogliara - Zona Picentini
Mostra su mappa
Orari: Dal lunedì al venerdì 09:00/13: 00 -- 16:00/20:00. Sabato 09:00/13:00.
Affiliato
Studio Picentino Srl
Via Vigna, 21 84099 San Cipriano Picentino (SA)

2025 Tecnocasa Franchising S.p.A. - P. IVA 08365160152 - Via Monte Bianco 60/A 20089 Rozzano (MI). Ogni agenzia ha un proprio titolare ed è autonoma. Privacy policy | Policy utilizzo | Cookie policy