Casa semindipendente in vendita

San Cipriano Picentino, Via Procenzano
€ 90.000
4 locali 4 locali
150 Mq 150 Mq
2 bagni 2 bagni

Casa semindipendente in vendita

San Cipriano Picentino, Via Procenzano

Descrizione annuncio

San Cipriano Picentino – Soluzione semindipendente su due livelli

In zona tranquilla e ben collegata, proponiamo ampia soluzione semindipendente sviluppata su due livelli, ideale per chi cerca spazi versatili e la possibilità di personalizzare parte dell’abitazione.

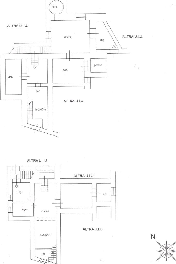
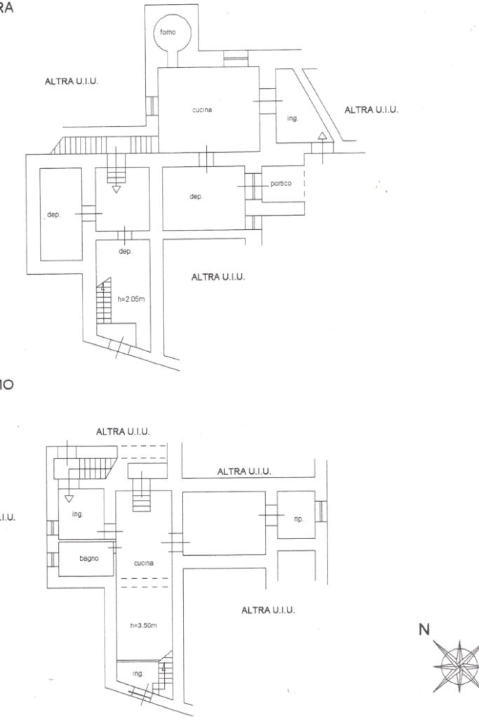
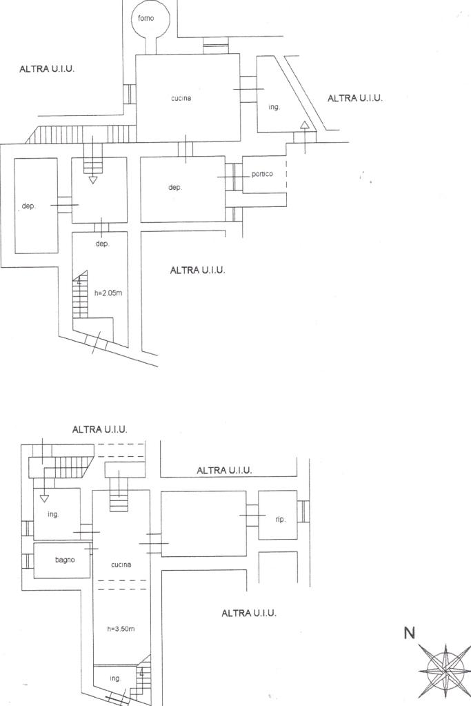
Piano Terra (da completare):
L’immobile si presenta allo stato grezzo, perfetto per realizzare una seconda unità abitativa o per creare ambienti su misura in base alle proprie esigenze. Attualmente è composto da un ampio ingresso, cucina abitabile con locale forno a legna, una camera e diversi locali deposito, comodi come pertinenze o future zone funzionali.

Piano Primo (abitabile da subito):
Una scala conduce alla zona abitativa principale, già rifinita e pronta per essere vissuta. Qui troviamo un luminoso soggiorno-cucina con accesso diretto al balcone, ideale per momenti di relax all’aperto. La zona notte è composta da due camere da letto, di cui una con accesso a un pratico ripostiglio perfetto da adibire a cabina armadio, entrambe dotate di finestra. Completa il piano un bagno con punto luce naturale.

Disponibilità immediata.
La soluzione è già libera e rappresenta un’ottima opportunità sia per famiglie che per chi desidera un’abitazione con spazi da personalizzare.

Giardino di proprietà:
A rendere la soluzione ancora più interessante, un grazioso giardino privato, accessibile sia dal piano terra che direttamente dal soggiorno del primo piano, perfetto per momenti di relax all’aperto o per vivere piacevoli giornate in famiglia.

Mostra tutto

Nelle vicinanze

Farmacia Farmacia
Farmacia
2,8 Km
Negozi Negozi
Negozi
2,9 Km
Bar Bar
Bar
2,9 Km
Mostra tutto

Caratteristiche

Rif.:
61151561
Piano:
2 di 2 (Piano medio)
Posti auto:
1
Balconi:
2
Terrazzi:
1
Camere da letto:
2
Mostra tutto
Prezzo Prezzo
€ 90.000
Rata mutuo Rata mutuo
€ 425 / mese
Spese annue Spese annue
€ 0
Proponi il tuo prezzoProponi il tuo prezzo

Classe Energetica

D
D
D
D
D
D
D
D
D
EP globale non rinnovabile:
175.00 kW h/m² anno
EP globale rinnovabile:
175.00 kW h/m² anno
EP invernale del fabbricato:
EP estiva del fabbricato:
Anno di costruzione:
1980
Riscaldamento:
Autonomo
Tipo impianto:
A radiatori
Tipo alimentazione:
Metano

Ti interessa visionare l'immobile?

Fissa un appuntamento  Fissa un appuntamento

Richiedi informazioni

Clicca su Leggi per aprire l'informativa
* Questi campi sono obbligatori

Calcola il tuo mutuo

Semplice e senza impegno
Anticipo

( % )
Mutuo

( % )

pochi semplici passi

inserisci i tuoi dati
Questionario completato
Grazie per aver richiesto un appuntamento senza impegno con un nostro Consulente del Credito e Assicurativo.

Hai inserito correttamente tutti i dati necessari e a breve riceverai una e-mail con un link da convalidare per inviare i tuoi dati.
Affiliato
Studio Picentino Srl
Via Vigna, 21 84099 San Cipriano Picentino (SA)

Il nostro staff


  • Alessandro Papandrea
    Affiliato

  • Corina Gabriela Caleasca
    Coordinatrice

  • Luciano Capaccio
    Affiliato
Via Vigna, 21 84099 San Cipriano Picentino (SA)
Zona: Matierno - Ogliara - Zona Picentini
Mostra su mappa
Orari: Dal lunedì al venerdì 09:00/13: 00 -- 16:00/20:00. Sabato 09:00/13:00.
Affiliato
Studio Picentino Srl
Via Vigna, 21 84099 San Cipriano Picentino (SA)

2025 Tecnocasa Franchising S.p.A. - P. IVA 08365160152 - Via Monte Bianco 60/A 20089 Rozzano (MI). Ogni agenzia ha un proprio titolare ed è autonoma. Privacy policy | Policy utilizzo | Cookie policy