Villa singola in vendita

Giffoni Sei Casali, Via San Pietro - Malche
€ 250.000
4 locali 4 locali
250 Mq 250 Mq
2 bagni 2 bagni

Villa singola in vendita

Giffoni Sei Casali, Via San Pietro - Malche

Descrizione annuncio

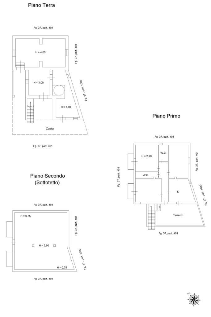
Proponiamo in vendita una soluzione indipendente su due livelli, con sottotetto di copertura, immersa in un ampio terreno pianeggiante di circa 13.000 mq, ideale per chi desidera tranquillità, spazio e contatto con la natura senza rinunciare alla comodità dei collegamenti principali.

L’immobile si presenta al piano terra con locali adibiti a depositi e ripostigli, oltre a un caratteristico forno a legna, perfetto per momenti conviviali e per chi ama la tradizione.

Il primo piano, destinato alla parte abitativa, si compone di una cucina funzionale, un ampio e luminoso salone, tre spaziose camere da letto e un bagno. Completa il livello un grande terrazzo, ideale per rilassarsi all’aperto, e una balconata che circonda l’intero piano, garantendo ambienti ariosi e ben illuminati.

La proprietà gode di un’ottima esposizione che assicura luminosità durante tutto l’arco della giornata. Il terreno, completamente pianeggiante, si presta a molteplici utilizzi, sia agricoli che ricreativi.

La posizione è strategica: situata nelle immediate vicinanze della strada principale che collega Ponte Molinello a Prepezzano, permette di raggiungere facilmente i principali servizi pur mantenendo privacy e indipendenza.

Soluzione ideale per famiglie, per chi cerca una residenza immersa nel verde o per chi desidera realizzare un’attività agricola o ricettiva.

Mostra tutto

Nelle vicinanze

Trasporto pubblico Trasporto pubblico
Trasporto pubblico
3,0 Km
Farmacia Farmacia
Farmacia
2,7 Km
Supermercati Supermercati
Supermercati
2,7 Km
Negozi Negozi
Negozi
2,7 Km
Bar Bar
Bar
2,6 Km
Mostra tutto

Caratteristiche

Rif.:
61192286
Piano:
2 di 3 (Piano su più livelli)
Box:
1
Posti auto:
3
Balconi:
2
Terrazzi:
1
Mostra tutto
Prezzo Prezzo
€ 250.000
Rata mutuo Rata mutuo
€ 1.185 / mese
Spese annue Spese annue
€ 0
Proponi il tuo prezzoProponi il tuo prezzo

Classe Energetica

D
D
D
D
D
D
D
D
D
EP globale non rinnovabile:
125.00 kW h/m² anno
EP globale rinnovabile:
125.00 kW h/m² anno
EP invernale del fabbricato:
EP estiva del fabbricato:
Anno di costruzione:
1980
Riscaldamento:
Autonomo
Tipo impianto:
A radiatori
Tipo alimentazione:
GPL

Ti interessa visionare l'immobile?

Fissa un appuntamento  Fissa un appuntamento

Richiedi informazioni

Clicca su Leggi per aprire l'informativa
* Questi campi sono obbligatori

Calcola il tuo mutuo

Semplice e senza impegno
Anticipo

( % )
Mutuo

( % )

pochi semplici passi

inserisci i tuoi dati
Questionario completato
Grazie per aver richiesto un appuntamento senza impegno con un nostro Consulente del Credito e Assicurativo.

Hai inserito correttamente tutti i dati necessari e a breve riceverai una e-mail con un link da convalidare per inviare i tuoi dati.
Affiliato
Studio Picentino Srl
Via Vigna, 21 84099 San Cipriano Picentino (SA)

Il nostro staff


  • Alessandro Papandrea
    Affiliato

  • Corina Gabriela Caleasca
    Coordinatrice

  • Luciano Capaccio
    Affiliato
Via Vigna, 21 84099 San Cipriano Picentino (SA)
Zona: Matierno - Ogliara - Zona Picentini
Mostra su mappa
Orari: Dal lunedì al venerdì 09:00/13: 00 -- 16:00/20:00. Sabato 09:00/13:00.
Affiliato
Studio Picentino Srl
Via Vigna, 21 84099 San Cipriano Picentino (SA)

2026 Tecnocasa Franchising S.p.A. - P. IVA 08365160152 - Via Monte Bianco 60/A 20089 Rozzano (MI). Ogni agenzia ha un proprio titolare ed è autonoma. Privacy policy | Policy utilizzo | Cookie policy